The Annabelle |
2,462 square feet |
---|
First Floorclick to enlarge |
Second Floorclick to enlarge |
---|---|
|
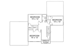
The Annabelle |
2,462 square feet |
---|
First Floorclick to enlarge |
Second Floorclick to enlarge |
---|---|
|