The Carrington III |
3,012 square feet |
|---|

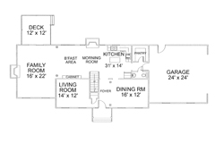
First Floorclick to enlarge |
Second Floorclick to enlarge |
|---|---|
|
|
The Carrington III |
3,012 square feet |
|---|

First Floorclick to enlarge |
Second Floorclick to enlarge |
|---|---|
|
|