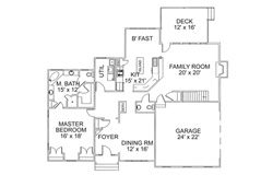
The Jasmine |
2,791 square feet+ 200 Unfinished Third Floor |
|---|

First Floorclick to enlarge |
Second Floorclick to enlarge |
|---|---|
|
|
The Jasmine |
2,791 square feet+ 200 Unfinished Third Floor |
|---|

First Floorclick to enlarge |
Second Floorclick to enlarge |
|---|---|
|
|