T.H.BURT
ABOUT
HOMES
CONTACT
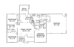
The Lexington
1,297 square feet
First Floor
click to enlarge
Print Floorplans
return to
HOMES
»
© T.H.Burt Corporation, All Rights Reserved | site by
cam