The Victory Two Story |
1,772 square feet |
|---|

First Floorclick to enlarge |
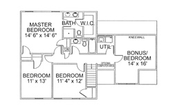
Second Floorclick to enlarge |
|---|---|
Elevation B |
|
Elevation C |
|
|
|
The Victory Two Story |
1,772 square feet |
|---|

First Floorclick to enlarge |
Second Floorclick to enlarge |
|---|---|
Elevation B |
|
Elevation C |
|
|
|